250 Wynwood

Miami, Florida

Client

Wynwood Arts District

Role

Design Architect

Team

Executive Architect: Carl Levin, cia-D; Structural: ASE Engineering Services, Inc; Civil Engineer: Rodolfo Ibarra, PE Consulting Engineers; MEP: Franyie Engineers, Inc

Type

New Construction

Program

Residential, Multi-Family

Status

Completed 2015

Size

36,000 sq. ft.

About the Project

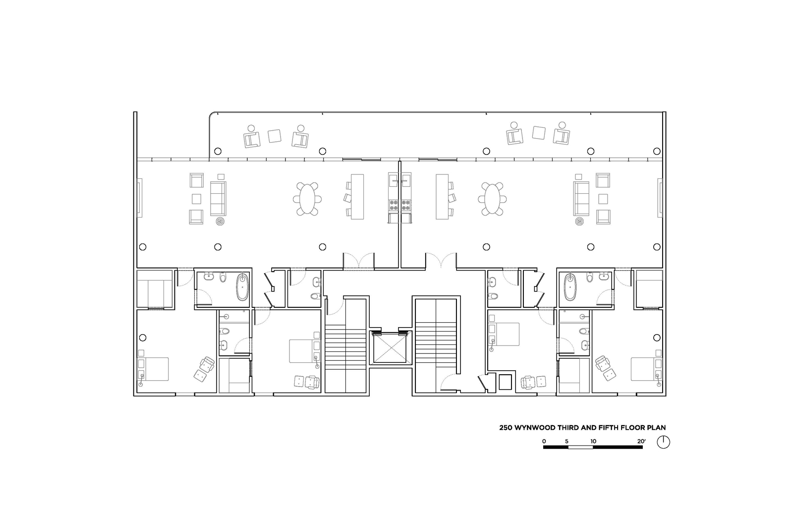
For its first multi-family residential development, DFA was tasked to create a live-work condominium building in one of the United States’ fastest growing neighborhoods. Being transferred from a collection of shuttered warehouses and factory buildings, Wynwood Arts District is now home to over 70 art galleries, retail stores, antique shops, eclectic bars, and one of the largest open-air street-art installations in the world. Beginning with three schemes, DFA’s strategy was to create a building that evokes ‘Home is Where the Art Is’ with each balcony of the six-story building featuring original artwork curated by Wynwood gallerist and Art Basel exhibitor Anthony Spinello of Spinello Projects. The eleven urban residences feature ten-foot ceilings with vast open living spaces, floor-to-ceiling windows, Treefrog sandblasted-finish Teak Sabbiata wood veneer cabinets, and oversized private balconies.

Inspiration

Drawings