Seminole Church Residence

Detroit, Michigan

Client

Private Client

Role

Design Architect

Type

Renovation

Program

Residential, Private

Status

Designed 2020

Size

4,918 sq. ft.

About the Project

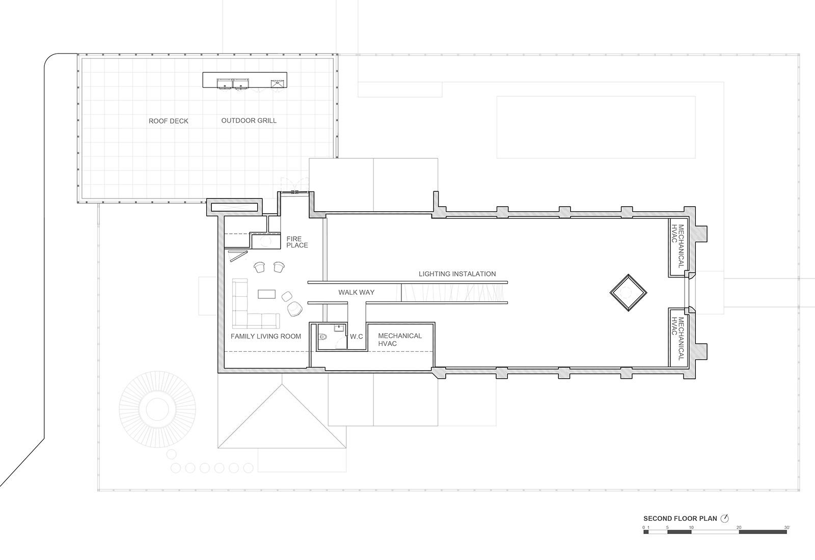
The Seminole Church Residence is one of DFA latest projects involving the transformation of a church into a private residence. The 4,918 sf structure located in Detroit’s historic Indian Village neighborhood is re-envisioned as a monolithic, contemporary and warm home comprised of 4 bedrooms, 3 bathrooms, plus 2 half-bathrooms and a 1,494 sf terrace off of a family room. The design readapts many of the existing spaces and architectural details while adding integrated lighting and mechanical systems. As part of the process, DFA is also reimagining the .49 acre site to create privacy and programming for year-round enjoyment. Represented by Architecture Talent Agency and working in collaboration with a local architect, the project is currently in design development and expected to break ground in 2021

Inspiration

Drawings